Mieszkanie na sprzedaż Toruń, Stawki

3 pokoje
59.09 m²
12 169,52 zł/m2
wysoki parter piętro
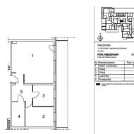
BLU-MS-7102
Oblicz ratę kredytu

719 097 zł

Mieszkanie na sprzedaż
Nowa oferta

Szczegóły oferty

Symbol oferty BLU-MS-7102
Powierzchnia 59,09 m²
Powierzchnia użytkowa [m2] 59,09 m²
Powierzchnia balkonów/tarasów 20,00 m²
Liczba pokoi 3
Liczba sypialni 2
Technologia budowlana tradycyjna murowana
Piętro wysoki parter
Liczba pięter w budynku 3
Garaż miejsce garażowe
Stan lokalu wysoki standard
Okna PCV
Instalacje nowe
Balkon duży
Liczba balkonów 1
Rok budowy 2025
Widok na osiedle
Woda jest
Dojazd asfalt
Otoczenie osiedle
Ogrzewanie pompa ciepła
Winda tak
Liczba wind 1
Usytuowanie jednostronne
Drzwi antywłamaniowe tak

Opis nieruchomości

3 POKOJE | WYSOKI STANDARD | 59,09 m² | PARTER | NOWE BUDOWNICTWO | DUŻY BALKON | OGRZEWANIE PODŁOGOWE | KLIMATYZACJA | 2025 r. | OSIEDLE STAWKI 

Biuro nieruchomości Blue-Home z przyjemnością prezentuje wartą uwagi ofertę sprzedaży nowego 3-POKOJOWEGO MIESZKANIA wykończonego "pod klucz", zlokalizowanego na toruńskich Stawkach.

Mieszkanie o powierzchni 59,09 m² składa się z:
– przestronnego salonu z aneksem kuchennym i wyjściem na bardzo duży balkon (ok 20 m²)
– 2 sypialni
– nowoczesnej łazienki z wc
– funkcjonalnego przedpokoju

Standard wykończenia:
– gładzie, podłogi wyłożone panelami ułożonymi w jodełkę
– kuchnia z zabudową i sprzętem AGD – gotowa do użytkowania
– łazienka wykończona w kaflach
– drzwi wejściowe antywłamaniowe
– w mieszkaniu zamontowana klimatyzacja

W cenie: umeblowanie widoczne na zdjęciach, zabudowa przedpokoju, kuchenna + AGD – idealna opcja dla osób szukających gotowego lokum

Cena – 719 097 zł
Kupujący zwolniony z 2% podatku PCC

Dlaczego warto?
– nowe, gotowe do wprowadzenia mieszkanie
– wysoki standard wykończenia
– klimatyzacja i balkon
– świetna lokalizacja i dostępność usług

Lokalizacja:
– nowoczesna, prężnie rozwijająca się część Torunia – os. Stawki
– dogodny dostęp do infrastruktury: sklepy, przedszkole, przystanki autobusowe, obiekty sporto
– budynek oddany do użytku w 2025 roku
– niska zabudowa z windą

Zapraszamy na prezentację! 

Usługa pośrednictwa jest płatna.
Oferujemy kompleksową pomoc w procesie kredytowania.

Karol – 883 900 224

Blue-Home Nieruchomości
Szosa Chełmińska 175A/6, 87-100 Toruń
właściciel: Agnieszka Płachta
NIP: 879-185-37-94
 

Kalkulatory

Kalkulator kredytowy

Wysokość raty

PLN
%

Kalkulator kosztów

Podatek od czynności cywilno-prawnych

Taksa notarialna
(opłata notarialna)

Wniosek o wpis do WKW

VAT od prowizji
agencji nieruchomości

Vat od taksy notarialnej
(opłaty notarialnej)

Prowizja agencji nieruchomości

Wypisy aktu notarialnego

Razem

Uwaga: mogą wystąpić dodatkowe opłaty za założenie księgi wieczystej oraz ustanowienie hipoteki.

PLN
PLN
PLN
PLN
PLN
PLN
%
PLN

Podobne oferty

Mieszkanie na sprzedaż

Toruń, Stawki

5 pokoi 90 m2 10 111,11 zł/m2
Oferta specjalna

Mieszkanie na sprzedaż

Toruń, Stawki

2 pokoje 37 m2 13 520,75 zł/m2
Oferta specjalna
Oferta specjalna

Mieszkanie na sprzedaż

Toruń, Stawki

3 pokoje 66 m2 11 816,39 zł/m2
Oferta specjalna
Nowa oferta

Mieszkanie na sprzedaż

Toruń, Stawki

3 pokoje 62 m2 12 009,93 zł/m2
Nowa oferta

Agent

Proszę wprowadzić poprawne imię i nazwisko
Proszę wprowadzić poprawny numer telefonu
Proszę wprowadzić poprawny adres e-mail
Proszę zaznaczyć wymagane zgody
Rozwiąż równanie:
17 3
Niepoprawny wynik