Mieszkanie na sprzedaż Toruń, Stawki

3 pokoje
66.65 m²
9 887,47 zł/m2
parter
BLU-MS-7118
Oblicz ratę kredytu

659 000 zł

Mieszkanie na sprzedaż
Oferta na wyłączność

Szczegóły oferty

Symbol oferty BLU-MS-7118
Powierzchnia 66,65 m²
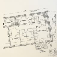
Powierzchnia użytkowa [m2] 64,71 m²
Powierzchnia balkonów/tarasów 4,50 m²
Liczba pokoi 3
Liczba sypialni 2
Rodzaj budynku blok
Technologia budowlana tradycyjna murowana
Opłaty w czynszu administracja, Części wspólne, monitoring, ogrzewanie, sprzątanie, woda, wywóz nieczystości, wywóz śmieci, zaliczka na fundusz remontowy
Piętro parter
Liczba pięter w budynku 2
Stan lokalu do wprowadzenia
Mies. czynsz admin. 680 PLN
Okna PCV
Instalacje dobre
Balkon jest
Liczba balkonów 1
Rok budowy 2017
Dojazd asfalt
Drzwi antywłamaniowe tak
piwnica tak, 1,94 m²

Opis nieruchomości

3 POKOJE | PARTER | 64,71 m² | BALKON | STAWKI – UL. WŁOCŁAWSKA | 659 000 ZŁ

Tylko u nas!
Biuro pośrednictwa w nieruchomościach Blue-Home ma przyjemność zaprezentować Państwu ciekawą ofertę sprzedaży 3 POKOJOWEGO mieszkania o pow. 64,71 mkw zlokalizowanego na STAWKACH przy ul. Włocławskiej.

Nieruchomość znajduje się na zamkniętym i monitorowanym terenie w nowym budownictwie.

Blok został oddany do użytku w 2017 roku.

Mieszkanie usytuowane jest na PARTERZE dwupiętrowego bloku.

Lokal składa się z 3 POKOI: aneksu kuchennego połączonego z salonem, gdzie znajduje się wyjście na balkon, 2 sypialni, łazienki z wc oraz przedpokoju.

Standard wykończenia:

Pokoje: ściany - gładzie, podłogi - panele
Aneks kuchenny: ściany - gładzie, podłogi - kafle
Łazienka: ściany - glazura, podłoga - kafle
Przedpokój: ściany - gładzie, podłoga - kafle

Okna PCV.

Drzwi zewnętrzne ANTYWŁAMANIOWE.

Do mieszkania przynależy balkon i komórka lokatorska.

Lokalizacja:
W bezpośrednim sąsiedztwie znajdziesz wszystko, czego potrzebujesz:
– McDonald’s, Biedronkę, Piekuś, Pepco, Gzellę, Rossmanna, Lidla – wszystko w zasięgu kilku minut spacerem! 

Idealna propozycja:
– dla rodziny z dziećmi 
– lub jako gotowiec inwestycyjny

Cena - 659 000 zł (do rozsądnej negocjacji)

Zapraszamy na prezentację!

Usługa pośrednictwa jest płatna.
Zapewniamy pełne wsparcie w procesie kredytowania.

Karol, 883 900 224

Blue-Home Nieruchomości
Szosa Chełmińska 175A/6
87-100 Toruń
wł. Agnieszka Płachta
NIP 879-185-37-94
 

Lokalizacja nieruchomości

Kalkulatory

Kalkulator kredytowy

Wysokość raty

PLN
%

Kalkulator kosztów

Podatek od czynności cywilno-prawnych

Taksa notarialna
(opłata notarialna)

Wniosek o wpis do WKW

VAT od prowizji
agencji nieruchomości

Vat od taksy notarialnej
(opłaty notarialnej)

Prowizja agencji nieruchomości

Wypisy aktu notarialnego

Razem

Uwaga: mogą wystąpić dodatkowe opłaty za założenie księgi wieczystej oraz ustanowienie hipoteki.

PLN
PLN
PLN
PLN
PLN
PLN
%
PLN

Podobne oferty

Oferta specjalna

Mieszkanie na sprzedaż

Toruń, Stawki

2 pokoje 37 m2 13 119,14 zł/m2
Oferta specjalna
Oferta specjalna

Mieszkanie na sprzedaż

Toruń, Stawki

3 pokoje 46 m2 16 832,11 zł/m2
Oferta specjalna
Nowa oferta

Mieszkanie na sprzedaż

Toruń, Stawki

3 pokoje 62 m2 12 009,93 zł/m2
Nowa oferta
Oferta na wyłączność

Mieszkanie na sprzedaż

Toruń, Stawki

3 pokoje 55 m2 13 508,58 zł/m2
Oferta na wyłączność

Agent

Proszę wprowadzić poprawne imię i nazwisko
Proszę wprowadzić poprawny numer telefonu
Proszę wprowadzić poprawny adres e-mail
Proszę zaznaczyć wymagane zgody
Rozwiąż równanie:
13 8
Niepoprawny wynik