Mieszkanie na sprzedaż Toruń, Mokre

2 pokoje
40.30 m²
12 630,27 zł/m2
1 piętro
BLU-MS-7134
Oblicz ratę kredytu

509 000 zł

Mieszkanie na sprzedaż
Nowa oferta

Szczegóły oferty

Symbol oferty BLU-MS-7134
Powierzchnia 40,30 m²
Powierzchnia użytkowa [m2] 40,30 m²
Liczba pokoi 2
Rodzaj budynku blok
Piętro 1
Mies. czynsz admin. 610 PLN
Okna PCV
Balkon jest

Opis nieruchomości

Biuro pośrednictwa nieruchomości Blue Home przedstawia ofertę sprzedaży mieszkania na os. Mokre. 
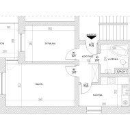
Mieszkanie znajduje się na I piętrze w bloku. Do lokalu przynależy piwnica. 

Na powierzchnię 40.30m2 składają się dwa niezależne, jasne pokoje, kuchnia, łazienka z wanną oraz przedpokój. 

Okna PCV. 
W większym pokoju wyjście na balkon. 
podłogi parkiet, ściany gładzie 
Czynsz administracyjny około 600zł 

Świetna lokalizacja! W pobliżu Centrum Bumar, sklepy, szkoła, apteka przystanki komunikacji miejskiej. 
Nieruchomość idealnie sprawdzi się jako miejsce dla rodziny 2+1, lub jako inwestycja pod wynajem. 

Cena 509 000zł 

Zamykany garaż przed budynkiem płatny dodatkowo 60 000zł 

Zapraszam do kontaktu! 
Adam 507 069 689 

Blue-Home Nieruchomości
Szosa Chełmińska 175A/6, 87-100 Toruń
właściciel: Agnieszka Płachta
NIP: 879-185-37-94

Kalkulatory

Kalkulator kredytowy

Wysokość raty

PLN
%

Kalkulator kosztów

Podatek od czynności cywilno-prawnych

Taksa notarialna
(opłata notarialna)

Wniosek o wpis do WKW

VAT od prowizji
agencji nieruchomości

Vat od taksy notarialnej
(opłaty notarialnej)

Prowizja agencji nieruchomości

Wypisy aktu notarialnego

Razem

Uwaga: mogą wystąpić dodatkowe opłaty za założenie księgi wieczystej oraz ustanowienie hipoteki.

PLN
PLN
PLN
PLN
PLN
PLN
%
PLN

Podobne oferty

Mieszkanie na sprzedaż

Toruń, Mokre

2 pokoje 56 m2 9 625,00 zł/m2

Mieszkanie na sprzedaż

Toruń, Mokre

2 pokoje 40 m2 9 617,72 zł/m2

Agent

Proszę wprowadzić poprawne imię i nazwisko
Proszę wprowadzić poprawny numer telefonu
Proszę wprowadzić poprawny adres e-mail
Proszę zaznaczyć wymagane zgody
Rozwiąż równanie:
29 4
Niepoprawny wynik