Lokal na sprzedaż Toruń, Rubinkowo I

438.00 m²
2 785,39 zł/m2
parter
BLU-LS-7065
Oblicz ratę kredytu

1 220 000 zł

Lokal na sprzedaż
Nowa oferta

Szczegóły oferty

Symbol oferty BLU-LS-7065
Powierzchnia 438,00 m²
Opłaty wg liczników Wywóz śmieci, Wywóz nieczystości, Woda zimna, Woda ciepła, woda, prąd, CO
Piętro parter
Stan lokalu wykończony
Instalacje ELEKTRYCZNA, WODNA, GAZOWA
Przeznaczenie lokalu usługowy, magazynowy, handlowy, handlowo-usługowy, biurowy, biurowo - magazynowy

Opis nieruchomości

Biuro pośrednictwa w nieruchomościach Blue Home ma przyjemność zaprezentować Państwu bardzo interesującą ofertę SPRZEDAŻY budynku wolnostojącego o powierzchni 438 m², zlokalizowany w Toruniu na osiedlu Rubinkowo. Nieruchomość położona jest na działce o powierzchni 576,24 m² i stanowi bardzo dobrą propozycję dla inwestorów lub firm poszukujących przestrzeni pod działalność handlową, usługową, biurową lub magazynową.

Podstawowe informacje

  • Powierzchnia użytkowa: 438 m²

  • Powierzchnia działki: 576,24 m²

Budynek jest dodatkowo podpiwniczony, co zapewnia dodatkową przestrzeń magazynową lub techniczną.

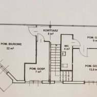
Układ pomieszczeń

Parter:

  • przestronna sala sprzedażowa

  • zaplecze

  • toaleta

Piętro:

  • 4 pomieszczenia oddzielone ścianami z karton-gipsu (istnieje możliwość łatwego połączenia pomieszczeń i zmiany układu)

  • toaleta

Konstrukcja budynku

  • technologia szkieletu stalowego

  • ściany z płyt obornickich

  • strop drugiej kondygnacji wylany w technologii żelbetowej

Instalacje i media

  • instalacja elektryczna

  • instalacja wodna

  • ogrzewanie miejskie

Opłaty według liczników: CO, prąd, woda (ciepła i zimna), wywóz śmieci oraz wywóz nieczystości.

Przeznaczenie

Nieruchomość doskonale sprawdzi się jako:

  • obiekt handlowy

  • handlowo-usługowy

  • usługowy

  • biurowy

  • biurowo-magazynowy

  • magazynowy

Dużym atutem jest możliwość umieszczenia reklamy – szyld na elewacji oraz dodatkowa przestrzeń reklamowa wokół budynku.

Cena

1 220 000 PLN

Budynek oferuje szerokie możliwości adaptacyjne i może zostać dostosowany do różnych typów działalności gospodarczej.

Zapraszam do kontaktu w celu uzyskania dodatkowych informacji oraz umówienia prezentacji nieruchomości.

Adrian Bułanowski
Telefon: 509 841 568
Numer licencji: 30723

Blue-Home Nieruchomości
Szosa Chełmińska 175A/6, 87-100 Toruń
Właściciel: Agnieszka Płachta
NIP: 879-185-37-94

Kalkulatory

Kalkulator kredytowy

Wysokość raty

PLN
%

Kalkulator kosztów

Podatek od czynności cywilno-prawnych

Taksa notarialna
(opłata notarialna)

Wniosek o wpis do WKW

VAT od prowizji
agencji nieruchomości

Vat od taksy notarialnej
(opłaty notarialnej)

Prowizja agencji nieruchomości

Wypisy aktu notarialnego

Razem

Uwaga: mogą wystąpić dodatkowe opłaty za założenie księgi wieczystej oraz ustanowienie hipoteki.

PLN
PLN
PLN
PLN
PLN
PLN
%
PLN

Agent

Proszę wprowadzić poprawne imię i nazwisko
Proszę wprowadzić poprawny numer telefonu
Proszę wprowadzić poprawny adres e-mail
Proszę zaznaczyć wymagane zgody
Rozwiąż równanie:
12 8
Niepoprawny wynik