Dom na sprzedaż Zławieś Wielka, Górsk

3 pokoje
80.50 m²
8 310,56 zł/m2
BLU-DS-6986
Oblicz ratę kredytu

669 000 zł

Dom na sprzedaż
Nowa oferta

Szczegóły oferty

Symbol oferty BLU-DS-6986
Powierzchnia 80,50 m²
Powierzchnia użytkowa [m2] 80,50 m²
Powierzchnia działki [m2] 500 m²
Liczba pokoi 3
Liczba sypialni 2
Technologia budowlana bloczki betonowe
Garaż brak
Okna PCV
Instalacje nowe
Liczba tarasów 1
Ukształtowanie działki płaska
Kształt działki prostokąt
Pokrycie dachu blacha
Stan budynku do wykończenia
Tarasy taras
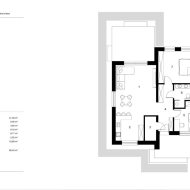
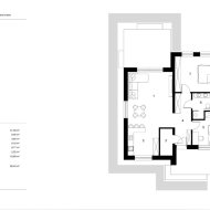
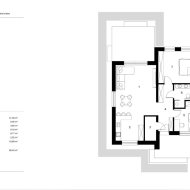
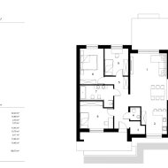
Pomieszczenia

Opis nieruchomości

3 POKOJE | PARTEROWY | BLIŹNIAK | GÓRSK | 80,50 m² | DZIAŁKA 500 m² | STAN DEWELOPERSKI | 669 000 ZŁ

Biuro pośrednictwa w nieruchomościach Blue-Home prezentuje ofertę sprzedaży 3-POKOJOWEGO, PARTEROWEGO DOMU W ZABUDOWIE BLIŹNIACZEJPRAWA LUB LEWA STRONA – o pow. 80,50 m², zlokalizowanego w podtoruńskiej miejscowości Górsk 

Oferowane domy stanowią nową inwestycję, w ramach której powstaną 4 budynki w zabudowie bliźniaczej oraz jeden dom wolnostojący

Dom sprzedawany w STANIE DEWELOPERSKIM, idealny do aranżacji według własnych potrzeb 

Budynek posadowiony na działce o pow. ok. 500 m²

ROZKŁAD POMIESZCZEŃ:

– salon z jadalnią 27,39 m² z wyjściem na taras 
– otwarta kuchnia 9,46 m²
– sypialnia 16,69 m²
– sypialnia 8,17 m²
– łazienka 5,92 m²
– korytarz 9,18 m²
– pomieszczenie gospodarcze 3,64 m²

DZIAŁKA:
– powierzchnia ok. 500 m²
– możliwość aranżacji ogrodu i tarasu

STANDARD WYKOŃCZENIA – STAN DEWELOPERSKI:

pompa ciepła 
ogrzewanie podłogowe w całym budynku
– instalacja elektryczna
– instalacja wodno-kanalizacyjna
– tynki wewnętrzne
– parapety
– okna PCV trzyszybowe
– drzwi wejściowe ANTYWŁAMANIOWE 
– elewacja – tynk cienkowarstwowy

Czynsz administracyjny – brak

LOKALIZACJA – GÓRSK:

– spokojna, kameralna okolica
– bezpośrednie sąsiedztwo terenów leśnych 
– idealne miejsce dla osób szukających ciszy i prywatności
– szybki dojazd do Torunia ????
– doskonała alternatywa dla mieszkania w mieście

Cena: 669 000 zł

Termin rozpoczęcia prac budowlanych – IV kwartał 2025 roku

Usługa pośrednictwa jest płatna
Zapewniamy kompleksową pomoc w procesie kredytowania 

Karol – 883 900 224

Blue-Home Nieruchomości
Szosa Chełmińska 175A/6
87-100 Toruń
właściciel: Agnieszka Płachta
NIP: 879-185-37-94

Lokalizacja nieruchomości

Kalkulatory

Kalkulator kredytowy

Wysokość raty

PLN
%

Kalkulator kosztów

Taksa notarialna
(opłata notarialna)

Wniosek o wpis do WKW

VAT od prowizji
agencji nieruchomości

Vat od taksy notarialnej
(opłaty notarialnej)

Prowizja agencji nieruchomości

Wypisy aktu notarialnego

Razem

Uwaga: mogą wystąpić dodatkowe opłaty za założenie księgi wieczystej oraz ustanowienie hipoteki.

PLN
PLN
PLN
PLN
PLN
%
PLN

Agent

Proszę wprowadzić poprawne imię i nazwisko
Proszę wprowadzić poprawny numer telefonu
Proszę wprowadzić poprawny adres e-mail
Proszę zaznaczyć wymagane zgody
Rozwiąż równanie:
20 9
Niepoprawny wynik